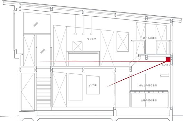
g3 中高生娘ふたりの母 現在、設計事務所自営 設計はヒトトナリより ということでブログを 元気に今日を楽しむに徹する話 ↑ コレ 全ての基本かと思っています 小さい頃から根底にあります それだけで動いていたと言っても 過言ではありません そんな人が母にもなりました が 基本かわりません 前置きの割に今日の話は やけに、現実の話ですが 我が家の夜のエアコン事情 完全とめます 何故ならばそれが快適だから そして快適に眠らないと 元気に毎日を楽しめないから 睡眠本がスキです ↓この時よんだのは 「睡眠こそ最強の解決策」です g3archi.com 最強の解決策の邪魔をするなんて ありえないというこ…